Neubau – Individuelles Wohnen

Gegenseitiges Vertrauen, als Grundlage für eine enge und konstruktive Zusammenarbeit zwischen Bauherren und Architekten, ist wesentliche Voraussetzung für das Gelingen jeder maßgeschneiderten Wohnraumplanung. Gemeinsam finden wir kreativ individuell angepasste Lösungen, abgestimmt auf die örtlichen Gegebenheiten und Ihre persönlichen Bedürfnisse und Möglichkeiten.

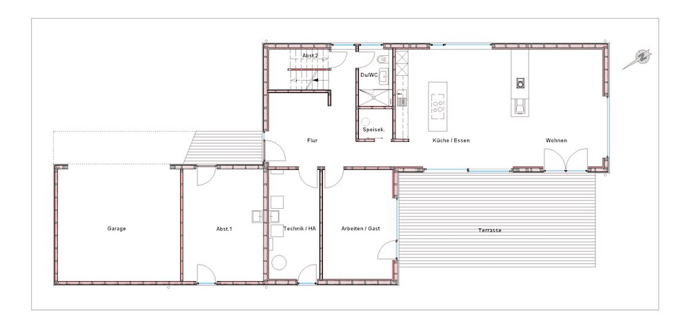
Im Rahmen der gemeinsamen Konzeptfindung fertigen wir Skizzen und Pläne für Ihr Projekt, die im weiteren Planungsprozess zur Genehmigungs- bzw. Ausführungsplanung weiterentwickelt werden.

Die erforderliche Abstimmung mit den Behörden, die Auswahl kompetenter Fachfirmen, eine detailgerechte Umsetzung sowie eine kontinuierliche Baubetreuung bis zum Einzug sind Bestandteil unserer Architektenleistungen.

Jetzt Kontakt aufnehmen